产品目录
桃色在线视频
液体流量计
桃色成人在线视频
油流量计
桃色视频入口
椭圆齿轮流量计
电磁流量计
涡街流量计
蒸汽流量计
孔板流量计
旋进旋涡流量计
热式气体质量流量计
转子流量计
浮子流量计
靶式流量计
气体流量计
超声波流量计
磁翻板液位计
浮子液位计
浮球液位计
玻璃管液位计
雷达液位计
超声波液位计
投入式液位计
压力变送器
差压变送器
液位变送器
温度变送器
热电偶
热电阻
双金属温度计
推荐产品
联系桃色APP直播软件
- 金湖桃色APP直播软件仪表有限公司
- 联系电话:15195518515
- 在线客服:1464856260
- 电话:0517-86801009
- 传真号码:0517-86801007
- 邮箱:1464856260@qq.com
- 网址:http://www.hdl-enamel.com
- 地址:江苏省金湖县理士大道61号
dn150旋进旋涡流量计
- 品*:JKM/桃色APP直播软件仪表
- 型号:JKM-LUX
- 测量范围:1.2~3600m³/h
- 精度等级:±1.0 ±1.5
- 公称通径:DN20-DN200
- 适用介质:天然气、液化气、氢气
- 工作压力:1.6~6.3MPa
- 工作温度:-20℃~+80℃
- 供电方式:24VDC 3.6V锂电池
- 订货号:QYZPAJRBB202
dn150旋进旋涡流量计产品概述
旋进旋涡流量计可集流量、温度、压力检测功能于一体,并能进行温度、压力、压缩因子自动补偿,并且具有较强的抗震动和抗干扰能力,高精度和高重复性,是石油、化工、电力、冶金等行业用于气体计量的理想仪表。

dn150旋进旋涡流量计主要特点
1.无机械可动部件,不易腐蚀,稳定可靠,寿命长,长期运行无须特殊维护;
2.采用 16 位计算机芯片,集成度高,体积小,性能好,整机功能强;
3.智能型流量计集流量探头、微处理器、压力、温度传感器于一体, 采取内置式组合,使结构更加紧凑,可直接测量流体的流量、压力和温度,并自动实时跟踪补偿和压缩因子修正;
4.采用双探头检测技术及新型传感器处理技术、合理的安装方式,大大地提高信号强度,使传感器能准确地检测出信号,并抑制由管线振动引起的干扰;
5.采用国内**的智能抗震技术,有效的抑制了震动和压力波动造成的干扰信号;
6.采用汉字点阵显示屏,显示位数多,读数直观方便,可直接显示工作状态下的体积流量、标准状态下的体积流量、总量,以及介质压力、温度等参数;
7.转换器可输出频率脉冲、4~20mA 模拟信号,并具有 RS485 接口,可直接与计算机联网,传输距离可达 1.2km;
8.多物理量参数报警输出,可由用户任选其中之一;
9.压力、温度信号为传感器输入方式,互换性强;
10.整机功耗低,可用内置电池供电,也可外接电源。

dn150旋进旋涡流量计主要用途
智能旋进旋涡流量计可广泛应用于石油、化工、电力、冶金、城市供气等行业测量各种气体流量,是目前油田和城市天然气输配计量和贸易计量的*选产品。

dn150旋进旋涡流量计结构与工作原理
1.1 流量计结构
旋进旋涡流量计结构紧凑,主要由壳体、旋涡发生体、传感器(温度、压力、流量)、整流器和积算仪构成。

1.旋涡发生体:用铝合金制成,具有一定角度的螺旋叶片,它固定在壳体收缩段前部,强迫流体产生强烈的旋涡流。
⒉壳体:本身带有法兰,并有一定形状的流体通道,根据不同的工作压力,壳体材料可采用铸铝合金或不锈钢。
⒊智能流量计积算仪:由温度、压力检测模拟通道、流量检测数字通道以及微处理单元、液晶驱动电路和其它辅助电路组成,并配有外输信号接口。
4.温度传感器:以 Pt100/pt1000 铂电阻为温度敏感元件,在一定温度范围内,其电阻值与温度成对应关系。
5.压力传感器:以压阻式扩散硅桥路为敏感元件,其桥臂电阻在外界压力作用下会发生预期变化,因此在一定激励电流作用下,其两个输出端的电位差与外界压力成正比。
6.流量传感器:安装在靠近壳体扩张段的喉部,可检测出旋涡进动的频率信号。
7.整流器:固定在壳体出口段,其作用是消除旋涡流,以减小对下游仪表性能的影响。
1.2 工作原理
流量传感器的流通剖面类似文丘利管的型式(如图 2)。在入口侧安放一组螺旋型导流叶片,当流体进入流量传感器时,导流叶片迫使流体产生剧烈的旋涡流。当流体进入扩散段时,旋涡流受到回流的作用,开始作二次旋转,形成陀螺式的涡流进动现象。该进动频率与流量大小成正比,不受流体物理性质和密度的影响,检测元件测得流体二次旋转进动频率就能在较宽的流量范围内获得良好的线性度。信号经前置放大器放大、滤波、整形转换为与流速成正比的脉冲信号,然后再与温度、压力等检测信号一起被送往微处理器进行积算处理,*后在液晶显示屏上显示出测量结果(瞬时流量、累积流量及温度、压力数据)。积算仪原理框图如图 3 所示。

1.3 流量积算仪工作原理
流量积算仪由温度和压力检测模拟通道、流量传感器通道以及微处理器单元组成,并配有外输出信号接口,输出各种信号。流量计中的微处理器按照气态方程进行温压补偿,并动进行压缩因子修正,气态方程如下:

QN——标况下的体积流量(Nm3/h);
QV——工况下的体积流量(m3/h);
Pa——当地大气压力(KPa);
P ——流量计取压孔测量的表压(KPa);
PN——标准状态下的大气压力(101.325 KPa);
TN——标准状态下的绝对温度(293.15K);
T ——被测流体的绝对温度(K);
ZN——气体在标况下的压缩系数;
Z ——气体在工况下的压缩系数;
注:当用钟罩或负压标定时取 ZN/Z=1,对天然气(ZN/Z)1/2=FZ为超压缩因子。按中国石油天然气总公司的标准 SY/T6143-1996 中的公式计算。

dn150旋进旋涡流量计技术性能
1.1 执行标准
JJG198-1994《速度式流量计》计量检定规程
1.2 精准度等级
在规定的流量范围内和工作条件下流量计的精确度等级为 1.0 级和 1.5 级。
1.3 流量计参数

注:准确度:为温度、压力修正后的系统精度
1.4 使用环境条件
环境温度:-30℃~+65℃
相对湿度:5%~95%
介质温度:-20℃~+80℃
大气压力:86KPa~106KPa
1.5 工作电源及信号输出
1.5.1 工作电源
A.外电源:+24VDC±15%,纹波<5%,适用于 4~20mA 输出、脉冲输出、报警输出、RS-485 等;
B.内电源:1 组 3.6V 锂电池(ER26500),当电压低于 3.0V 时,出现欠压指示。
1.5.2 整机功耗
A.外电源:<2W;
B.内电源:平均功耗 1mW,可连续使用两年以上。
1.5.3 脉冲输出方式
工况脉冲信号,直接将流量传感器检测的工况脉冲信号经光耦隔离放大输出,高电平≥20V,低电平≤1V;
定标脉冲信号,与 IC 卡阀门控制器配套,高电平幅度≥2.8V,低电平幅度≤0.2V,单位脉冲代表体积量可设定范围:0.001m3~100m3。单选择该值时必须注意:定标脉冲信号频率应≤1000Hz。
定标脉冲信号,经光耦隔离放大输出,高电平≥20V,低电平≤1V。
1.5.4 RS-485 通信(光电隔离),可实现以下功能:
A.采用 RS-485 接口,可直接与上位机或二次表联网,远传显示介质的温度、压力和经温度、压力补偿后的标准体积流量和标准体积总量;
B.由 RS-485 接口与 HW-Ⅰ数据采集器配套,可组成电话网络通信系统,一台数据采集器可带 15 台流量计;
C.由 RS-485 接口与 HW-Ⅱ数据采集器配套,可组成宽带网络通信系统,由 INTERNET 传输数据,一台数据采集器可带 8 台流量计。
1.5.5 4~20mA 标准电流信号(光电隔离)
与标准体积流量成正比,4mA 对应 0 m3/h, 20 mA 对应*大标准体积流量(该值可在一级菜单中进行设置),制式:两线制或三线制,流量计可根据所插电流模块自动识别,并正确输出。
1.5.6 控制信号输出
A.下限报警信号(LP):光电隔离,高低电平报警,报警电平可设定,工作电压+12V~+24V,*大负载电流 50mA;
B.上限报警信号(UP):光电隔离,高低电平报警,报警电平可设定,工作电压+12V~+24V,*大负载电流 50mA;
C.关阀报警输出(BC 端,IC 卡控制器用):逻辑门电路输出,正常输出低电平,幅度≤0.2V;报警输出高电平,幅度≥2.8V,负载电阻≥100kΩ;
D.电池欠压报警输出(BL 端,IC 卡控制器用):逻辑门电路输出,正常输出低电平,幅 度≤0.2V;报警输出高电平,幅度≥2.8V,负载电阻≥100kΩ;
1.6 现场显示功能
A.积算仪显示面板上实时显示工况(或标况)下的温度、压力、瞬时流量、累计流量;
B.报警功能:流量上下限、温度上下限、压力上下限报警,报警方式:字符闪烁。
1.7 防爆型式与等级
隔爆型:其防爆标志为 ExdIIBT4、ExdIICT4-T6(不含乙炔);
本安型:其防爆标志为 ExiaIICT4
1.8 防护等级
IP65
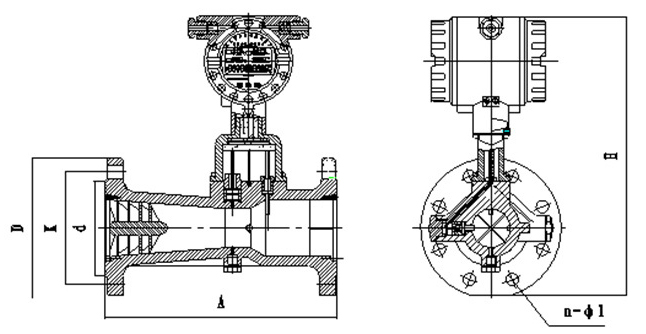
dn150旋进旋涡流量计外形尺寸
流量计的外形尺寸见图,图中未注尺寸列于表 中,流量计采用法兰连接方式。法兰尺寸执行 GB/T9112~9113-2000 标准。


注:以上数据仅供参考,具体以实物为准,如有技术升级,暂不另行通知
dn150旋进旋涡流量计安装
1.1 流量计的安装
1.流量计安装时,严禁在其进出口法兰处直接进行电焊,以免烧坏流量计内部零件。
2.对于新安装或检修后的管道务必进行清扫,去除管道中的杂物后方能安装流量计。
3.流量计应安装在便于维修、无强电磁场干扰、无强烈机械振动以及热辐射影响的场所;
4.流量计不宜用在流量频繁中断和有强烈脉动流或压力脉动的场合;
5.流量计室外安装时,上部应有遮盖物,以防雨水浸入和烈日曝晒影响流量计使用寿命;
6.流量计可任意角度安装,流体的流向应与流量计上标识的流向一致;
7.在管道施工中,应考虑安装伸缩管或波纹管,以免对流量计造成严重的拉伸或断裂;
8.流量计应与管道同轴安装,并防止密封片和黄油进入管道内腔;
9.采用外电源时,流量计必须有可靠接地,不得与强电系统共用地线,在管道安装或检修时,不得把电焊系统的地线与流量计搭接。
10.为了不影响流体正常输送和便于维护,要求按图 6 所示安装旁通管道,并保证前≥3DN、 后≥1DN 的直管段;

1.2 直管段要求
根据旋进旋涡流量计的工作原理和流量计对上、下游直管段要求,对各种上游阻力件,建议采用如图 所列的前后直管段长度,且保持直管段内壁光滑平直。

1.3 安装注意事项
1.传感器按流向标志可在垂直、水平或任意倾斜位置上安装;
2.当管线较长或距离振动源较近时,应在流量计的上、下游安装支撑,以消除管线振动的影响;
3.传感器的安装地点应有足够的空间,以便于流量计的检查和维修,并应满足流量计的环境要求;
4.应避免外界强磁场的干扰;
5.在室外安装使用时,应有遮盖物,避免烈日曝晒与雨水浸蚀,影响仪表使用寿命;
6.管线试压时,应注意智能型流量计所配置压力传感器的压力测量范围,以免过压损坏压力传感器;
7.应注意安装应力的影响,安装流量计上游和下游管道应同轴,否则会产生剪切应力。安装流量计的位置应考虑密封垫片的厚度,或在下游安装一个弹性伸缩节;
8.安装流量计之前应先清除管道中的焊渣等杂物;
9.投入运行时,应缓慢开启流量计上、下游阀门,以免瞬间气流过急而冲坏起旋器;
10.当流量计需要有信号远传时,应严格按“工作电源”要求接入外电源(8~24)VDC,严禁在信号输出口直接接入 220VAC 或 380VAC 电源;
11.用户不得自行更改防爆系统的接线方式和任意拧动各个输出引线接头;
12.流量计运行时,不允许随意打开后盖改动仪表参数,否则影响流量计的正常工作;
13.定时检查流量计法兰处的泄漏情况。
1.4 内置电池的使用及更换
1.电池电量显示
当电池显示仅剩一格时,要求用户在一个月内更换电池;只显示电池外形符号时,则电池电量已耗尽,必须立即更换电池。
2.电池的更换方法
打开智能流量积算仪的后盖,松开电池盖板上的三颗螺钉,拔下电池插座,取出电池,换好新电池后重新安装。
1.5 防爆场所安装要求
1.流量计应有可靠的接地,防爆接地不应与强电系统的保护接地共用;
2.现场测试电源时,不允许使用交流电源接地;
3.在任何情况下,用户不得自行更改防爆电路、元器件和防爆型式;
4.必须先切断外接电源再打开转换器盖子。

